СП 7.13130-2013, п.7.4
…. При совместном действии систем приточной и вытяжной противодымной вентиляции отрицательный дисбаланс в защищаемом помещении (расход приточного воздуха меньше расхода удаляемого расхода продуктов горения) должен составлять не более 30%. При этом перепад давления на закрытых дверях эвакуационных выходов не должен превышать 150 Па. При дверях с размерами 2х1 м перепад давления 150Пa соответствует усилию открывания двери 15 кгс.
Клапан КИД изготавливается нормально закрытым (НЗ) в двух вариантах стеновом и канальном исполнении.
Устройство клапана.
Клапан избыточного давления КИД состоит из прямоугольного (квадратного) корпуса из оцинкованной стали, лопаток, установленных в корпус на осях и выполненных из оцинкованной стали. В корпус клапана КИД встроен пружинный механизм настройки для регулирования давления открытия клапана. Для одновременного срабатывания лопаток клапана соединены системой рычагов и тяг.
Клапаны избыточного давления (тип КИД) имеют следующий вид обозначения:
КИД – Клапан Избыточного Давления
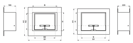
Б= _________ мм
Ширина180 мм. 220мм.
Тип исполнения: Стеновой_______ Канальный_______
Исполнение НЗ. (КИД)-HхВ (КИДК)-НхВ
Стеновой Канальный
В1= В +90 мм В2 = В – 30мм Н1 = Н + 60мм
H х В - установочный размер клапана.
Н2 х В2 - размер внутреннего сечения
Н1 х В1 - габаритные размеры клапана
Производитель, оставляет за собой право без предварительного уведомления покупателя вносить изменения в конструкцию, комплектацию или технологию изготовления изделия с целью улучшения его свойств. В тексте и цифровых обозначениях данного руководства могут быть допущены опечатки. Если после прочтения руководства у Вас останутся вопросы по работе и эксплуатации прибора, обратитесь к производителю для получения разъяснений. На изделии присутствует этикетка, на которой указаны все необходимые технические данные и другая полезная информация о приборе/
Для покупки выбранного товара в Ростове-на-Дону достаточно оформить заказ одним из предложенных способов:
- Выбрать понравившийся товар и нажать кнопку «Заказать». При оформлении заказа заполнить форму. Вписать информацию в поля: ФИО, телефон и e-mail. Затем вам перезвонит менеджер, чтобы подтвердить ваше согласие на совершение покупки.
- Выбрать понравившийся товар и нажать кнопку «В корзину». Затем перейти в корзину и нажать «Оформить заказ». Далее заполнить форму с контактными данными и отправить заявку. С вами свяжется менеджер для дальнейшего обсуждения.
Оплата
Мы работаем с физическими и юридическими лицами. И предоставляем сразу два варианта оплаты.
- Наличные. Вы подписываете товаросопроводительные документы, расплачиваетесь денежными средствами, получаете товар и чек.
- Безналичный расчет. Принимаем карты Visa и MasterCard. Доступен при курьерской доставке.
Доставка в Москве
Можем доставить ваш заказ собственными ресурсами. Либо через варианты доставки:
- Доставка транспортной компанией. Специалист предложит выбрать удобное время доставки и уточнит адрес.
- Самовывоз со склада. Для получения заказа обратитесь к сотруднику в зоне выдачи и назовите номер.
